본문 바로가기
홈
로그인
대학메인
입학안내
생활관
생활관
로그인
대학메인
입학안내
close
전체 메뉴 닫기
생활관
인사말
연혁
주요사업소개
조직구성
찾아오시는 길
오시는길
캠퍼스지도
생활관안내
시설현황
시설현황
푸름관1동
푸름관2동
푸름관3동
푸름관4동
아름관A동(구 신평관)
오름관1동
오름관2동
오름관3동
관리동
공지사항
선발 공지사항
입·퇴사 공지사항
공동시설 이용안내
규정과 규칙
운영규정
관생수칙
관생선발지침
기혼자실운영지침
공공요금관리지침
금주의 식단
자료실
푸름과 오름
갤러리
각종 양식
커뮤니티
푸름관,오름1동 시설물 고장신고
오름관 2,3동 시설물고장 및 청소불량신고
Q&A(공개문의)
Q&A(비공개 문의)
FAQ
게스트룸(양호동)
시설안내
운영지침
신청방법
연구자생활관(신평동)
시설안내
운영지침
신청방법
생활관안내
HOME
생활관안내
시설현황
푸름관3동
생활관안내
시설현황
시설현황
푸름관1동
푸름관2동
푸름관3동
푸름관4동
아름관A동(구 신평관)
오름관1동
오름관2동
오름관3동
관리동
공지사항
선발 공지사항
입·퇴사 공지사항
공동시설 이용안내
규정과 규칙
운영규정
관생수칙
관생선발지침
기혼자실운영지침
공공요금관리지침
금주의 식단
푸름관3동
시설현황
푸름관 1동
푸름관 2동
푸름관 3동
푸름관 4동
아름관 A동
오름관 1동
오름관 2동
오름관 3동
관리동
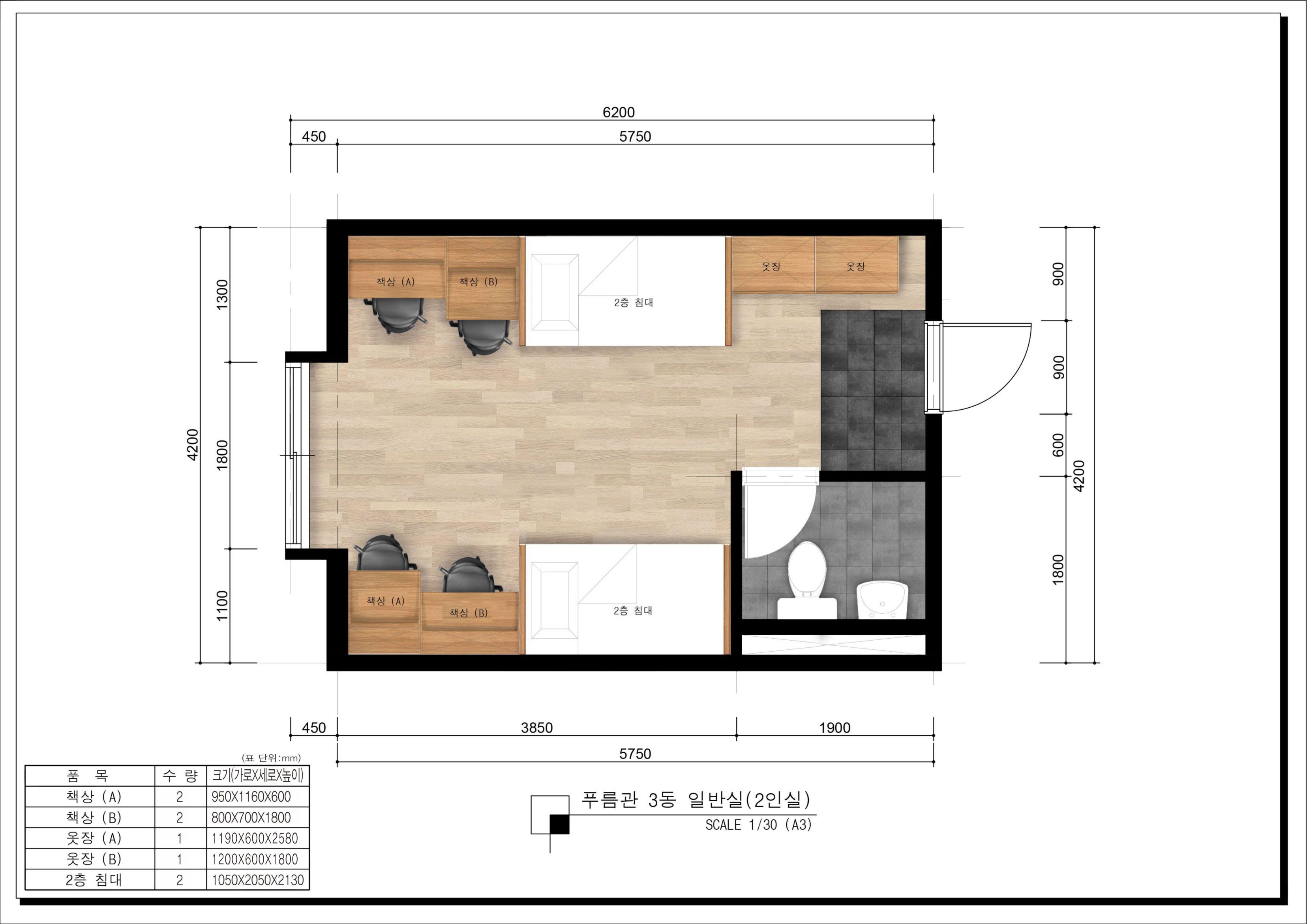
푸름관 3동
용도 : 여학생 전용관
규모 : 6층/4인-80실/수용인원 320명
시설사진
※ 평면도는 호실마다 배치가 다소 차이가 있을 수 있음(바닥-장판)
전경
평면도-일반실(2인실)
관생실
옷장A
옷장B
신발장
책상
※ 위 사진의 크기가 다른 2개 책상을 1인 사용
빨래방(1층)
화장실, 세면기
샤워기
체력단련실(2층)
휴게실(2층)
자동심장제세동기
이 사이트는 자바스크립트를 지원하지 않으면 정상적으로 보이지 않을수 있습니다.